CHAVE SECCIONADORA

Chave seccionadora trifásica, classe de tensão nominal 12,5 a 36kV
Corrente nominal de 400Amp a 2500A NBI-150 kV – 15 kA a 31,5kA;
Chave faca de aterramento no lado da de saída
Sistema de acionamento por comando motorizado 110/220Vca ou 125Vcc Fase/ aterramento;
Contatos auxiliares 3 NA+3NF e 2 contatos passantes
Bloqueios e intertravamento entre a chave, sistema de aterramento e entre acionamentos automático e manual.

>> Figura em 3D da Chave 36kV – Sem Motorização

Nota 1 – 10.000 Operações

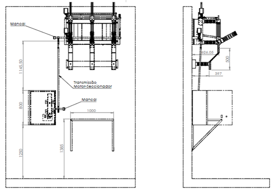
>> Painel com motorização / Intertravamento elétrico e mecânico

>> Figura ilustrativa em 3D com Motorização

Projeto e Fabricação: 60 dias.
Áreas: Siderurgia, Usinas, Mineração, Concessionárias de Energia e Cabines Primárias.

O relatório técnico será entregue digital relatórios, fotos das áreas verificadas, projetos e cópia da ART

>> Projeto Seccionadora